
Nación construirá Plan de viviendas con diseño hecho en El Calafate
Guillermo Pérez Luque


Arq. Lucía Gamboa - FM Dimensión
El próximo miércoles 23 de marzo en la Municipalidad de El Calafate se realizará la apertura de ofertas de empresas interesadas en construir 74 viviendas, correspondientes al Programa “Casa Propia - Construir Futuro", creado por el Ministerio de Desarrollo Territorial y Hábitat de Nación.
La inversión oficial prevista para esta obra es de $ 612.985.239, y representa el mayor plan de viviendas aportado por Nación para El Calafate en casi 20 años.


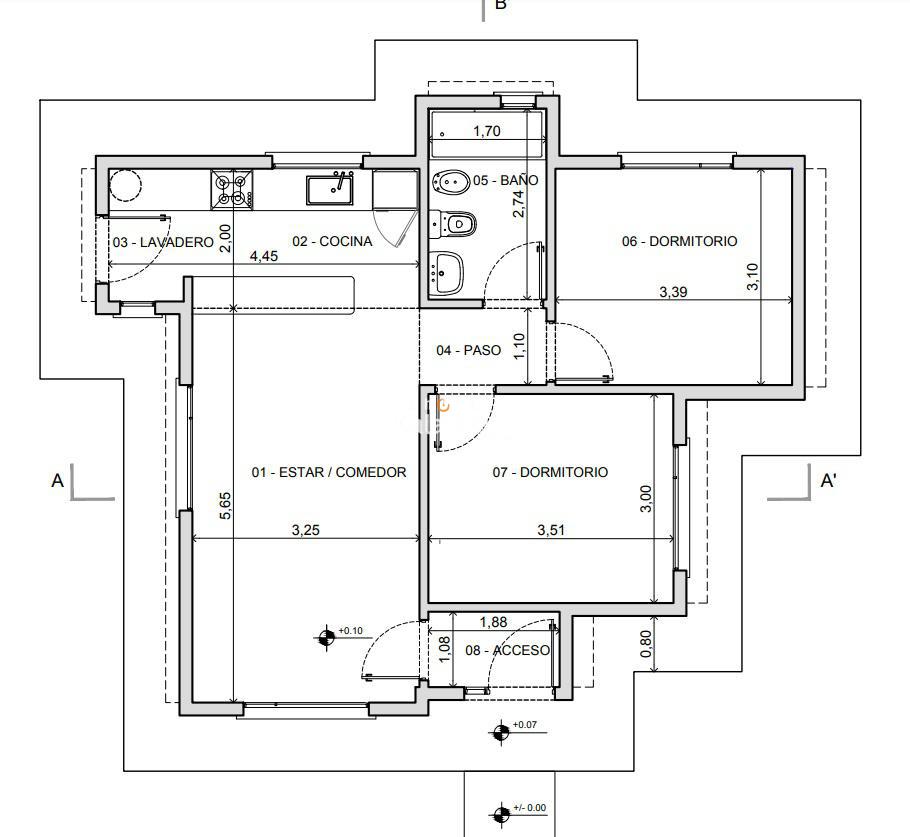
Ahora Calafate supo que las viviendas cuentan con 66 m2 y tienen dos habitaciones, cocina, comedor - estar, lavadero y baño. Cuatro de ellas están adaptadas para personas con discapacidad. 
El diseño de las viviendas del programa "Casa Propia" es similar a estas casas que construyó el Municipio
Además este plan tiene un condimento adicional, ya que el Nación finalmente aprobó el diseño presentado por la Municipalidad. “Es un diseño nuestro, adaptado a El Calafate”, explicó la secretaria de Planeamiento y Urbanismo Lucía Gamboa.
El diseño es similar a un conjunto habitacional que el Municipio ya construyó con fondos propios, aunque tendrá otra disposición interna, como muestra el plano al que accedió Ahora Calafate.

La funcionaria municipal explicó en FM Dimensión que todos los municipios construyen las casas de este programa Casa Propia con un prototipo que mandan directamente desde el Ministerio. “Nosotros presentamos un diseño propio y nos aprobaron los proyectos. Estamos muy contentos porque era una obra que estábamos esperando mucho”, indicó.
Efectivamente, ya en marzo del año pasado Ahora Calafate informó que el Municipio había elevado el diseño propio, que estaba pendiente de aprobación, lo que ocurrió recientemente. “Nos parece que es importante para El Calafate porque tiene un valor agregado”, dijo Gamboa.
El conjunto de vivienda estará distribuido en dos o tres manzanas ubicadas en la continuación de la Avenida Fagnano, hacia el Oeste. El plazo de ejecución será de 12 meses, a partir de la firma del contrato con la empresa que resulte ganadora.






VIDEO. Muestra fotográfica en homenaje a Malvinas y a Fernando Alturria

Alumnos del Joven Labrador elaboraron 200 roscas de Pascua en una jornada solidaria junto a Cáritas

Detectan un jabalí en la Meseta del Lago Buenos Aires y alertan por su avance en la provincia

ABRIL. Jetsmart deja de operar, Flybondi aplica fuerte reducción, y se levantan los vuelos a Córdoba

Gran arranque de año para los Propato en el pádel nacional e internacional


AHORA: Cortan la Ruta 40 entre El Calafate y La Esperanza por nieve, vuelcos y vehículos atravesados





