
Es el sector cercano a Lago del Desierto. El tránsito permanecerá interrumpido entre las 11 y las 16 hs, tal como ocurrió el sábado. Vialidad Provincial continúa trabajando en el lugar y pide extrema precaución a los automovilistas.

Un complejo de más de 600 m2 será construido en el acceso a la localidad. Tendrá con dos grandes talleres de operaciones, mantenimiento y guarda de camiones. El presupuesto oficial supera los $ 300 millones. La licitación está en marcha y las ofertas se conocerán el 16 de marzo. Los detalles e imágenes en esta nota
El Chaltén06/03/2023
Guillermo Pérez Luque

![ICE Chalten2 [AUDIO FMD]](/download/multimedia.normal.b74d37a478e98322.494345204368616c74656e32205b415544494f20464d445d5f6e6f726d616c2e6a7067.jpg)
La construcción de la Subcentral de Incendios en la zona norte del PN Los Glaciares es una obra proyectada hace bastante tiempo. De hecho viene siendo incluida en las leyes de Presupuestos Nacionales, año tras año.


Esta vez se dio un paso más para la concreción de este edificio que será la necesaria sede de los brigadistas de Incendios, Comunicaciones y Emergencias con asiento en El Chalten, quienes vienen reclamando por las condiciones de trabajo en la seccional Lago Viedma.
Ahora Calafate pudo saber que la licitación está vigente y que el próximo 16 de marzo se abrirán los sobres con las ofertas de empresas interesadas en la ejecución. El presupuesto previsto es de $ 318.969.927,33.
La inversión proviene de un préstamo otorgado por el Banco Internacional de Reconstrucción y Fomento (BIRF) para financiar el costo del Proyecto Recuperación Sustentable de Paisajes y Medios de Vida en la República Argentina.
![ICE Chalten 2 [AUDIO FMD]](http://ahoracalafate.com.ar/download/multimedia.normal.88ee37065d4af466.494345204368616c74656e2032205b415544494f20464d445d5f6e6f726d616c2e6a7067.jpg)
La Administración de Parques Nacionales, organismo de ejecución del Contratante, destinará una parte de los recursos de este préstamo a los pagos para esta obra del Centro Operativo Lago Viedma, entendiendo que es un proyecto priorizado en el Plan de Gestión del Parque.
“Considerando el aumento en la afluencia de visitantes existe la necesidad de brindar servicios de emergencia a actividades de trekking y de montaña, como así también de prevención y extinción de incendios. Por este motivo es prioritario desvincular estos servicios del área de atención al público del Centro de Visitantes “Ceferino Fonzo”, afirmaron fuentes de Parques.
EL PROYECTO
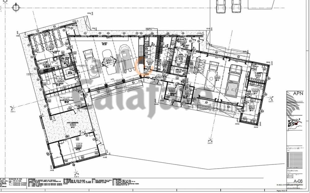
Ahora Calafate accedió a imágenes y detalles de la obra proyectada, que prevé un plazo de ejecución de 9 meses, a partir de la firma de contrato con la empresa que resulte adjudicataria.
El edificio contará con dos grandes talleres de Servicios Generales (operaciones, mantenimiento y guarda de camiones). Cada taller tendrá un depósito y pañol de guardado, e incluyendo además un taller independiente de carpintería, sanitarios y cambiadores de varones y mujeres.
![ICE Chalten [AUDIO FMD]](http://ahoracalafate.com.ar/download/multimedia.normal.ac4fe70f8f6223e4.494345204368616c74656e205b415544494f20464d445d5f6e6f726d616c2e6a7067.jpg)
Además contará con oficina administrativa y sala de máquinas, más un sector de comedor/SUM con cocina de servicio al comedor y baño para discapacitados.
La superficie se compone de 657 m2 cubiertos en planta baja, 227 m2 de veredas perimetrales y rampa descubiertas y 1483 m2 de enripiado de playas de maniobra y estacionamientos exteriores.
La estructura del complejo será de hormigón armado y estructura metálica que responden al área sísmica de implantación, a unos 500 m del ingreso a la localidad de El Chaltén.
![Subsecentral ICE Plano [AUDIO FMD]](http://ahoracalafate.com.ar/download/multimedia.normal.ab057def8023e27c.537562736563656e7472616c2049434520506c616e6f205b415544494f20464d5f6e6f726d616c2e6a7067.jpg)
La delimitación de la superficie de implantación de la obra tuvo en cuenta el área identificada como susceptible a procesos de remoción en masa (caída de rocas), de acuerdo con el Estudio de Peligrosidad Geológica de El Chaltén y Ladera Norte del Cerro Solo (SEGEMAR, 2019).
La subcentral, “estará ubicada a una distancia prudente del paredón rocoso, minimizando el riesgo de accidentes, sin afectar la accesibilidad al edificio ni su funcionalidad”, sostienen desde Parques Nacionales.





Es el sector cercano a Lago del Desierto. El tránsito permanecerá interrumpido entre las 11 y las 16 hs, tal como ocurrió el sábado. Vialidad Provincial continúa trabajando en el lugar y pide extrema precaución a los automovilistas.

La Dirección Provincial de Vialidad (Distrito El Calafate) informó que este sábado 29 de noviembre se realizará un corte total de tránsito en la Ruta Provincial 41, que une El Chaltén con Lago del Desierto. La interrupción será de 11:00 a 16:00 hs, debido a trabajos de movimiento de suelo.

La nueva fecha límite será el 30 de abril de 2026, la misma que dispuso para el ex hotel “La Aldea”. Se confirma lo anticipado por AHORA CALAFATE. El plazo también es “estrictamente improrrogable”. La decisión se tomó tras constatar la presencia de 54 personas y un informe social que pidió contemplar la situación de niñas, niños y grupos vulnerables.

Un monumento a Osvaldo Bayer había sido mostrado en marzo pasado, luego que una máquina de Vialidad Nacional destruyera la figura del reconocido historiador que estaba en Río Gallegos. Tras aquel hecho vandálico el Municipio de El Calafate decidió acondicionar un espacio en la av. Costanera, que será inaugurado el próximo lunes.

Alumnos de la Escuela Industrial N°9 finalizaron un proceso iniciado en junio, donde desarrollaron un sistema de monitoreo remoto y una app para el laboratorio de la planta. Los proyectos mejoran la eficiencia operativa y demuestran el impacto positivo de articular educación técnica y necesidades de la comunidad.

En el Día Internacional de las Personas con Discapacidad, se presentó el proyecto de inclusión laboral en “La Montaña”, que incorporó a cuatro jóvenes con discapacidad. La presentación reunió a referentes de Nación, Provincia, Municipio, Taller Abriendo Caminos, familiares y vecinos que colmaron el salón.

Movilizaciones en El Calafate, El Chaltén, Río Gallegos y Caleta Olivia se realizarán esta tarde bajo el lema de defensa del agua y las normativas que protegen los hielos y ambientes periglaciares. Las razones del rechazo al intento de modificar la ley nacional.

Yanina Fernández y Natalia Zamora, referentes del Taller Abriendo Caminos, destacaron en diálogo con Ahora Calafate el impacto de la incorporación de jóvenes al restaurante La Montaña, y resaltaron experiencias anteriores de inclusión laboral que aún perduran

